| lab3 |
|
italia |
 |
| palinsesto |
|
pattirosario@gmail.com |
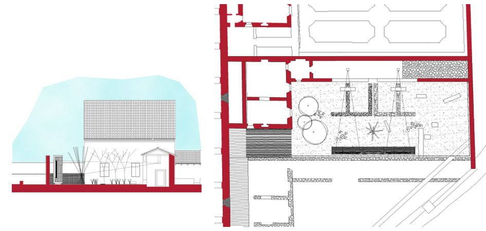
| I video sono riprese in diretta da luoghi del territorio.I proiettori sono nel portico.L’elemento frangisole posto lungo il perimetro degli schermi assicura il contrasto, questa struttura in legno riprende gli elementi per schermare i limoneti.La via in pietra è composta da lastre di calcare di Padula la via in legno da pezzi di corteccia di pino.Le sedute sono in pietra e legnO e si presentano con una finitura naturale.L’elemento“alto”(6m)composto da pali sostiene fioriere in tessuto con piante officinali: calendula, myrtus comunis,vinca minor.L’accesso al giardino dalla cella è ostruito da una scansione cubica (700x150x460cm)in pali di castagno.L’orto è ricoperto da erba e in alcuni punti da piante: lavandula, rosa canina, asparagus.In prossimità della cella verranno piantati nuovi alberi.E’previsto un impianto di irrigazione La luce diffusa è assicurata dai video,le luci d’accento, crepuscolari,indicano i percorsi e alcune aree del giardino,questi utilizzano in parte tecnologia LED. |
| Author(s): gaspare di maggio, rosario patti, pierpaolo patti |
|