sari elisabetta   italia
Hortus line  
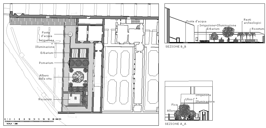
La superficie centrale del giardino è tenuta “a verde”, in parte con tappeto erboso, in parte ricoperta da tappezzante quale il trifoglio. L’intorno viene realizzato con materiale drenante, quale terra battuta, che riprenda il carattere arido del meridione, in contrasto con la zona centrale verde. Dalla fonte circolare, circondata da gigli, scorga l’acqua che va ad irrigare tutta la parte “a verde” del giardino. L’aiuola verso la fonte costituisce l’ erbarium ed è formata da piante officinali. Poi vi è il pomarium, caratterizzato da esemplari di fico. L’ambito centrale, di fronte al porticato, presenta un albero centrale, un’olivo, con allori agli angoli. Lo spazio subito sotto è utilizzato per l’impianto di alcune palme, mentre quello inferiore è delimitato da rose. Il sistema di irrigazione è costituito da una canalizzazione in coccio, a vista, che crea una serpentina che delimita le aiuole ed è integrato con una banda luminosa, idonea a illuminare il giardino anche la sera.
Author(s): elisabetta sari
  PROJECT N. 176 OF 185 ORTUS ARTIS COMPETITION BROWSE pages:  PAGE 1   PAGE 2    projects:  PREVIOUS   NEXT